Plot for sale in Javea 25-10138

25-10138
340,000

Features

  • Plot
  • Jávea
  • 890 m2 plot
  • Mountain

Description

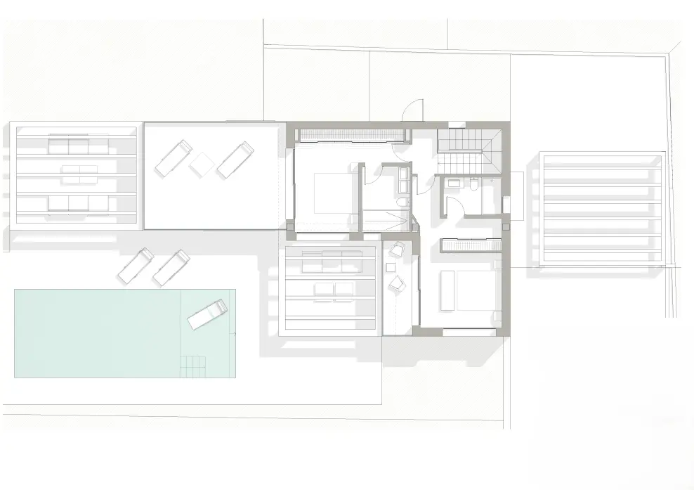
Prime Plot in Pinosol, Jávea: APPROVED LICENCE for Immediate Construction

This flat and sunny 889 m² plot in the quiet residential area of Pinosol represents a rare opportunity to start building your dream home without the usual administrative delays.

With the building licence already granted, this project is "ready to go."

The current approved design features a modern 177 m² two-story villa with three en-suite bedrooms, an open-plan living area, and a utility room. There is also an available plan to extend the build with a basement level for a fourth bedroom, gym, or cinema room.

The plot is east/west oriented, fully fenced on three sides, and offers stunning views of the Montgó mountain.

The outdoor project includes a 10x4m swimming pool, Mediterranean gardens, and a double carport. Located just a 3-minute drive from the Arenal beach and close to top international schools, this plot is not tied to any builder, giving you complete freedom.

With taxes and planning costs largely prepaid by the vendor, this is the most efficient way to own a new-build villa in one of Jávea’s most popular neighborhoods.

Make an Enquiry





    © 2026 Costa Blanca Homes
    chevron-rightphonewhatsappquestion-circle-oenvelopeusersphone-handsetmap-marker linkedin facebook pinterest youtube rss twitter instagram facebook-blank rss-blank linkedin-blank pinterest youtube twitter instagram